リヴァティ保谷 保谷の1DK賃貸アパート!|センチュリー21アーバンステージ

TOPページ
物件検索
西東京市の賃貸情報一覧
リヴァティ保谷 保谷の1DK賃貸アパート!

リヴァティ保谷 保谷の1DK賃貸アパート 

  • 10.1万円 / 管理費: 0.4万円 / 共益費:-
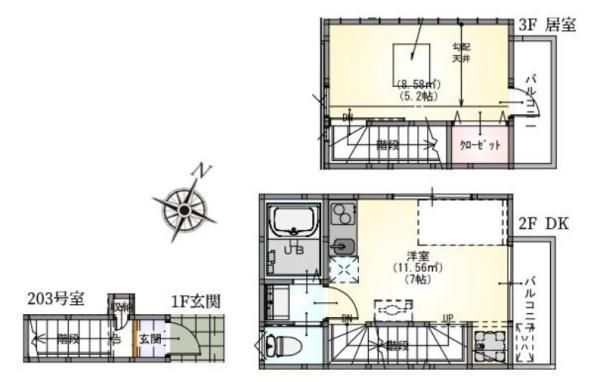
  • 間取り:1DK / 専有面積:32.81m2
  • 敷金:1ヶ月 / 礼金:1ヶ月 / 保証金:0ヶ月 / 敷引・償却: 0ヶ月0ヶ月
【建物外観】 
  • 【建物外観】 
  • 【間取】 
  • 【居室・リビング】 
  • 【キッチン】 
  • 【その他部屋・スペース】 
  • 【トイレ】 
  • 【バス】 
  • 【収納】 
  • 【周辺】 

【リヴァティ保谷についてスタッフからのイチオシポイント!】

【保谷駅徒歩4分!】
設備充実のデザイナーズワンルーム!
駐輪・バイク置き場もあり快適な暮らしができるお部屋です♪
リヴァティ保谷は東京都西東京市下保谷4丁目【西武池袋線 保谷駅徒歩5分】にある1DK賃貸アパートです。
2019年11月築の3階建てのアパートで、お部屋は3階建ての2階部分です。
物件の広さは32.81m2で人気の1DKです。
※お部屋のもっと詳しい内容や入居時期、諸条件のご相談など、ホームページには掲載が間に合わず載せきれていない情報もございます。
気になることが御座いましたらお気軽にメールにてお問い合わせください。
042-467-0977
株式会社 アーバンステージ
お問い合わせNO:RHS-047901-10347c

物件基本情報

所在地 東京都西東京市下保谷4丁目   周辺MAP
交通 西武池袋線 「保谷駅」 徒歩5分
種別 / 構造 アパート / 木造 主要採光面 所在階 / 階数 2階 / 3階
築年月 2019年11月  間取り 1DK( 洋室5.2畳/DK7畳 ) 専有面積 32.81m2

物件詳細情報

損保 要 18,000円/2年  更新料 あり 新賃料 1ヶ月 鍵交換代 27,500円
駐車場 なし 近隣駐車場   契約期間
借家区分
2年 -
現況 空家 入居可能日 即入居可 取引態様 媒介
保証人代行会社 その他 50.0% 仲介手数料 1.1ヶ月 バイク置き場
他初期費用

設備詳細情報

キッチン
バス・トイレ
  • バストイレ別
  • 追焚機能浴室
  • 浴室乾燥機
  • 洗面台
  • 温水洗浄便座
  • オートバス
住空間
  • バルコニー
  • フローリング
  • エアコン
設備・サービス
  • 収納
  • 床下収納
  • 全居室収納
  • 駐輪場
  • バイク置場
特 徴
条件・その他  ガス:都市 / 水道:公営 / 排水:下水 / 保証人代行:必加入
コメント 【保谷駅徒歩4分!】
設備充実のデザイナーズワンルーム!
駐輪・バイク置き場もあり快適な暮らしができるお部屋です♪
備 考 -

学区情報

小学校区
()
中学校区
()
情報更新日:2026年02月08日 次回更新予定日:2026年02月22日
※各種情報と差異がある場合は現況優先となります
※物件情報の学区情報について
当サイト物件情報に記載されております通学区域(学区)情報は、国土数値情報ダウンロードサービスが提供する小学校区データ【2016年度】及び中学校区データ【2016年度】を元に加工したものですので、記載情報が現在の学区域と異なる場合がございます。国土数値情報ダウンロードサービスのWEBサイト上で記述通り、データは必ずしも正確とは言えません。また、通学区域(学区)は毎年見直しの対象となりますので、そちらを踏まえ学区情報は参考としてご活用下さい。

近隣スポット情報

こちらの物件の空室状況

所在階 / 部屋番号 賃料 共益費 / 管理費 間取り 専有面積 敷金 礼金 お気に入り 物件詳細
201 7.6万円 - / 0.3万円 ワンルーム 11.5m2 1ヶ月 1ヶ月 お気に入り 物件詳細
203 10.1万円 - / 0.4万円 1DK 32.81m2 1ヶ月 1ヶ月 お気に入り 物件詳細
042-467-0977
株式会社 アーバンステージ
お問い合わせNO:RHS-047901-10347c

この物件に似た物件をチェック!


閲覧した物件の履歴

閲覧した物件の一覧を見る

最近検索した条件一覧



気になったら今すぐ!カンタンお問合せ



お問合せ内容必須
【備考欄】
希望条件・来店希望日・その他質問がございましたらご記入ください。
お客様情報
お名前必須
連絡先必須 メールアドレス
電話番号



「個人情報の取扱いについて」を必ずご確認ください。内容に同意の上、確認画面へお進みください。




※ご記入いただいたメールアドレス宛てに、お問合せ内容の確認メールをお送りいたします。
※Yahoo!メールなどのフリーメールをご利用の場合、迷惑メールフォルダに入る場合があります。
 迷惑メールのフォルダ・設定等をご確認下さい。
 


▲ページのTOPへ戻る


お問合せはこちら

株式会社 アーバンステージ 042-467-0977

お知らせ

information
もっと見る

お問い合わせ

042-467-0977

営業時間:9:30〜18:30
定休日:毎週水曜 / 第1,3,5火曜