田無のその他賃貸テナント!|センチュリー21アーバンステージ

TOPページ
物件検索
西東京市の賃貸情報一覧
田無のその他賃貸テナント!

 田無のその他賃貸テナント 

  • 33万円 / 管理費: 2.16万円 / 共益費:-
  • 間取り:その他 / 専有面積:121.28m2
  • 敷金:5ヶ月 / 礼金:2ヶ月 / 保証金:0ヶ月 / 敷引・償却: 0ヶ月0ヶ月
【建物外観】 
  • 【建物外観】 
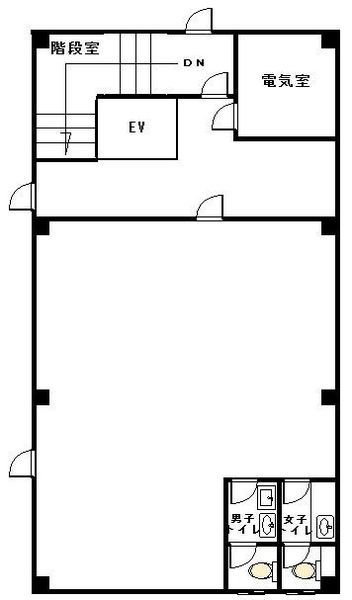
  • 【間取】 
  • 【その他】 
  • 【トイレ】 ウォシュレット付き
  • 【キッチン】 
  • 【その他設備】 
  • 【その他設備】 
  • 【その他】 

【についてスタッフからのイチオシポイント!】

駅近・武蔵境通り沿いの好立地・男子トイレ女子トイレ別・明るい内外観にリフォーム済・諸条件等ご相談くださいませ。
は東京都西東京市田無町3丁目【西武新宿線 田無駅徒歩4分】にあるその他賃貸テナントです。
1992年3月築の4階建てのテナントで、お部屋は4階建ての4階部分です。
物件の広さは121.28m2で人気のその他です。
※お部屋のもっと詳しい内容や入居時期、諸条件のご相談など、ホームページには掲載が間に合わず載せきれていない情報もございます。
気になることが御座いましたらお気軽にメールにてお問い合わせください。
042-467-0977
株式会社 アーバンステージ
お問い合わせNO:RHS-047901-3860c

物件基本情報

所在地 東京都西東京市田無町3丁目   周辺MAP
交通 西武新宿線 「田無駅」 徒歩4分
種別 / 構造 テナント / RC造(鉄筋コンクリート造) 主要採光面 - 所在階 / 階数 4階 / 4階
築年月 1992年3月  間取り その他( - ) 専有面積 121.28m2

物件詳細情報

損保 更新料 あり 新賃料 1ヶ月 鍵交換代 -
駐車場 なし 近隣駐車場   契約期間
借家区分
3年 -
現況 空き予定 入居可能日 相談 取引態様 専任
保証人代行会社 (株)Casa 100.0% 仲介手数料 1.1ヶ月 バイク置き場
他初期費用

設備詳細情報

キッチン
バス・トイレ
住空間
  • 最上階
設備・サービス
  • エレベーター
特 徴
  • 駅徒歩5分以内
条件・その他  保証人代行:必加入
コメント 駅近・武蔵境通り沿いの好立地・男子トイレ女子トイレ別・明るい内外観にリフォーム済・諸条件等ご相談くださいませ。
備 考 ご相談は西東京市 田無 賃貸 事務所 店舗 センチュリー21 アーバンステージまでお気軽にお申付け下さい!こちらは管理物件です!諸条件等ご相談ください

学区情報

小学校区
()
中学校区
()
情報更新日:2026年04月14日 次回更新予定日:2026年04月28日
※各種情報と差異がある場合は現況優先となります
※物件情報の学区情報について
当サイト物件情報に記載されております通学区域(学区)情報は、国土数値情報ダウンロードサービスが提供する小学校区データ【2016年度】及び中学校区データ【2016年度】を元に加工したものですので、記載情報が現在の学区域と異なる場合がございます。国土数値情報ダウンロードサービスのWEBサイト上で記述通り、データは必ずしも正確とは言えません。また、通学区域(学区)は毎年見直しの対象となりますので、そちらを踏まえ学区情報は参考としてご活用下さい。

近隣スポット情報

こちらの物件の空室状況

所在階 / 部屋番号 賃料 共益費 / 管理費 間取り 専有面積 敷金 礼金 お気に入り 物件詳細
33万円 - / 2.16万円 その他 121.28m2 5ヶ月 2ヶ月 お気に入り 物件詳細
042-467-0977
株式会社 アーバンステージ
お問い合わせNO:RHS-047901-3860c

この物件に似た物件をチェック!


閲覧した物件の履歴

閲覧した物件の一覧を見る

最近検索した条件一覧



気になったら今すぐ!カンタンお問合せ



お問合せ内容必須
【備考欄】
希望条件・来店希望日・その他質問がございましたらご記入ください。
お客様情報
お名前必須
連絡先必須 メールアドレス
電話番号



「個人情報の取扱いについて」を必ずご確認ください。内容に同意の上、確認画面へお進みください。




※ご記入いただいたメールアドレス宛てに、お問合せ内容の確認メールをお送りいたします。
※Yahoo!メールなどのフリーメールをご利用の場合、迷惑メールフォルダに入る場合があります。
 迷惑メールのフォルダ・設定等をご確認下さい。
 


▲ページのTOPへ戻る


お問合せはこちら

株式会社 アーバンステージ 042-467-0977

お知らせ

information
もっと見る

お問い合わせ

042-467-0977

営業時間:9:30〜18:30
定休日:毎週水曜 / 第1,3,5火曜