一橋学園のその他賃貸店舗(建物一部)!|センチュリー21アーバンステージ

TOPページ
物件検索
小平市の賃貸情報一覧
一橋学園のその他賃貸店舗(建物一部)!

 一橋学園のその他賃貸店舗(建物一部) 

  • 74.8万円 / 管理費: - / 共益費:-
  • 間取り:その他 / 専有面積:270.01m2
  • 敷金:0ヶ月 / 礼金:0ヶ月 / 保証金:3ヶ月 / 敷引・償却: 0ヶ月解約時20%
【建物外観】 
  • 【建物外観】 
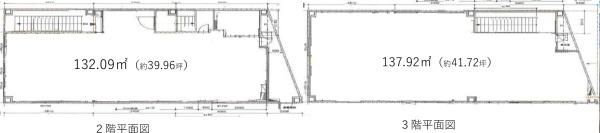
  • 【間取】 
  • 【その他】 
  • 【その他】 

【についてスタッフからのイチオシポイント!】

一橋学園北口商店街内で好立地!
2階3階一括貸しとなります
駅近!各業種相談可能
スケルトン渡し
は東京都小平市学園東町1丁目【西武多摩湖線 一橋学園駅徒歩2分】にあるその他賃貸店舗(建物一部)です。
2008年2月築の3階建ての店舗(建物一部)で、お部屋は3階建ての2階部分です。
物件の広さは270.01m2で人気のその他です。
※お部屋のもっと詳しい内容や入居時期、諸条件のご相談など、ホームページには掲載が間に合わず載せきれていない情報もございます。
気になることが御座いましたらお気軽にメールにてお問い合わせください。
042-467-0977
株式会社 アーバンステージ
お問い合わせNO:RHS-047901-10276c

物件基本情報

所在地 東京都小平市学園東町1丁目   周辺MAP
交通 西武多摩湖線 「一橋学園駅」 徒歩2分
種別 / 構造 店舗(建物一部) / S造(鉄骨造) 主要採光面 - 所在階 / 階数 2階 / 3階
築年月 2008年2月  間取り その他( - ) 専有面積 270.01m2

物件詳細情報

損保 不要 更新料 鍵交換代 -
駐車場 なし 近隣駐車場   契約期間
借家区分
3年 -
現況 空家 入居可能日 相談 取引態様 媒介
保証人代行会社 仲介手数料 バイク置き場
他初期費用

設備詳細情報

キッチン
バス・トイレ
住空間
設備・サービス
特 徴
条件・その他  
コメント 一橋学園北口商店街内で好立地!
2階3階一括貸しとなります
駅近!各業種相談可能
スケルトン渡し
備 考 解約条件→6カ月前予告

学区情報

小学校区
()
中学校区
()
情報更新日:2025年12月13日 次回更新予定日:2025年12月27日
※各種情報と差異がある場合は現況優先となります
※物件情報の学区情報について
当サイト物件情報に記載されております通学区域(学区)情報は、国土数値情報ダウンロードサービスが提供する小学校区データ【2016年度】及び中学校区データ【2016年度】を元に加工したものですので、記載情報が現在の学区域と異なる場合がございます。国土数値情報ダウンロードサービスのWEBサイト上で記述通り、データは必ずしも正確とは言えません。また、通学区域(学区)は毎年見直しの対象となりますので、そちらを踏まえ学区情報は参考としてご活用下さい。

近隣スポット情報

こちらの物件の空室状況

所在階 / 部屋番号 賃料 共益費 / 管理費 間取り 専有面積 敷金 礼金 お気に入り 物件詳細
74.8万円 - / - その他 270.01m2 0ヶ月 0ヶ月 お気に入り 物件詳細
042-467-0977
株式会社 アーバンステージ
お問い合わせNO:RHS-047901-10276c

この物件に似た物件をチェック!


閲覧した物件の履歴

閲覧した物件の一覧を見る

こだわり条件から小平市の物件を探す

最近検索した条件一覧



気になったら今すぐ!カンタンお問合せ



お問合せ内容必須
【備考欄】
希望条件・来店希望日・その他質問がございましたらご記入ください。
お客様情報
お名前必須
連絡先必須 メールアドレス
電話番号



「個人情報の取扱いについて」を必ずご確認ください。内容に同意の上、確認画面へお進みください。




※ご記入いただいたメールアドレス宛てに、お問合せ内容の確認メールをお送りいたします。
※Yahoo!メールなどのフリーメールをご利用の場合、迷惑メールフォルダに入る場合があります。
 迷惑メールのフォルダ・設定等をご確認下さい。
 


▲ページのTOPへ戻る


お問合せはこちら

株式会社 アーバンステージ 042-467-0977

お知らせ

information
もっと見る

お問い合わせ

042-467-0977

営業時間:9:30〜18:30
定休日:毎週水曜 / 第1,3,5火曜